„Premium Vario“: großzügiges Holzhaus
Beim „Premium Vario“ handelt es sich um ein Holzhaus mit 221,5 m² Gesamtfläche sowie eigenem Carport. Sowohl im Erdgeschoss als auch im Obergeschoss befinden sich Schlaf- und Wohnräume. In diesem Holzhaus finden Sie genügend Platz zur individuellen Entfaltung. Das „Premium Vario“ lässt sich wie alle Haustypen von LéonWood® als Blockbohlenhaus mit glatter Wandvariante oder als Rundstammhaus realisieren. Gerne beraten Sie unsere Fachberater zu den verschiedenen Möglichkeiten!
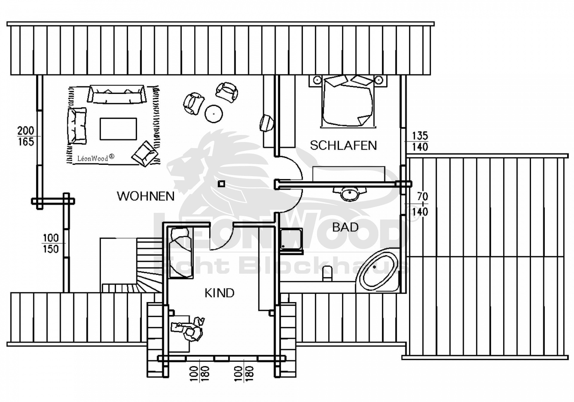
„Premium Vario“ mit viel Platz für die Familie
Das geräumige Holzhaus hält im Obergeschoss ein Kinderzimmer, das Elternschlafzimmer sowie ein großes Badezimmer mit Platz für eine Eckbadewanne und eine freistehende Dusche bereit. Als besonderes Highlight befindet sich im Obergeschoss ein großzügiges Wohnzimmer, welches die Wohlfühlzone des Blockhauses darstellt und als Familientreffpunkt gilt. Ein Stock tiefer im Erdgeschoss gelangen Sie über die Diele in den offenen Koch- und Ess-Bereich sowie in das Gäste-WC. Abgetrennt von der eigentlichen Wohneinheit findet sich in der anderen Erdgeschosshälfte eine separat zugängliche, kleine Wohnung mit einem Koch-, Ess- und Wohn-Bereich, einem Schlafzimmer, einem Badezimmer und einer kleinen Abstellkammer. Die Wohnung im Haus kann beispielsweise für die Großeltern oder für die junge Erwachsenengeneration genutzt werden. Alternativ ist auch eine Vermietung als Ferienwohnung oder Einliegerwohnung vorstellbar. Am Haus befindet sich zusätzlich noch ein Hauswirtschaftsraum, der für alle Parteien zugänglich ist. Ein eigener Carport rundet das Ensemble ab.
Rundstamm- oder Blockbohlenhaus: vielfältige Gestaltung
Beim „Premium Vario“ stehen Ihnen zahlreiche Möglichkeiten hinsichtlich Grundriss und optischer Gestaltung zur Verfügung. So können beispielsweise alle LéonWood®-Wandvarianten umgesetzt werden. Unter anderem lässt sich mit der Biodoppelwand®round ein optimal gedämmtes Rundstammhaus realisieren oder mit der Bio-Doppelwand® ein Blockbohlenhaus mit ebenmäßigem Antlitz. Ein LéonWood®-Holzhaus überzeugt dank der natürlichen Hauptbaustoffe Holz und Kork durch Umweltfreundlichkeit, Energieeffizienz und ein Raumklima zum Wohlfühlen. Auf Wunsch kann Energieeinsparung durch weitere moderne Technologien aus unserem polarconcept® umgesetzt werden.
Wenden Sie sich gerne an uns, wenn Sie sich zum Holzhaus „Premium Vario“ beraten lassen möchten. Wir sind für Sie da!
Gesamtkatalog anfordernDaten
- EG: 158,0 m²
- OG: 101,0 m²
- Gesamtfläche: 221,5 m²
- Preis: ab 222.300 € (Wandausführung BIO-Doppelwand DuoPlus*)
Der Preis beinhaltet den Blockhaus-Bausatz nach Standard-Grundriss, die Lieferung an eine frei erreichbare Baustelle in Deutschland sowie die aktuell geltende MwSt. für Deutschland. Bilder enthalten Sonderausstattungen.






