Blockhausbau im Landhausstil: „Mini 75“
Das ebenerdige Holzblockhaus „Mini 75“ hat eine Gesamtfläche von rund 75 qm. Es besticht durch einen wunderschönen Landhausstil mit flach geneigtem Dach und eine Veranda, die zum gemütlichen Frühstücken, zu Spieleabenden oder anderen Aktivitäten einlädt.
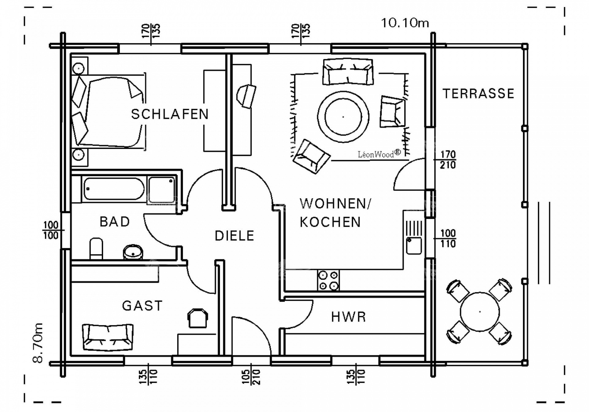
Individueller Blockhausbau mit Gestaltungsfreiheit
Die Raumaufteilung lässt sich, genauso wie das Design und der Grundriss, individuell gestalten. Wir präsentieren Ihnen hier zwei mögliche Varianten als Inspiration. Die Bandbreite ist aber noch vielseitiger. In beiden Ausführungen gibt es ein Schlafzimmer, ein Gästezimmer sowie ein Bad mit Badewanne. Je nach Belieben kann der Wohn-Koch- und Ess-Bereich als eine offene gemeinsame Einheit oder doch mit einer separaten Küche realisiert werden. Bei der offenen Variante ist die ganze Familie beim Kochen, Essen und Relaxen beisammen: mehr Verbundenheit garantiert. Diejenigen, die eine separate Küche bevorzugen, können mit der Ausbauvariante II beim Kochen ungestört sein und Kochgerüche in einem Raum halten. Sie haben hier die freie Auswahl – ganz nach Ihren persönlichen Vorlieben. Ebenfalls freie Wahl haben Sie bezüglich der diversen Wandvarianten von LéonWood®, abhängig von dem Grad der Energieeffizienz, aber auch der Gestaltung der Bohlen – ob rund oder flach. Gerne können Sie sich hierzu auf unserer Website informieren. Unsere Fachberater stehen Ihnen natürlich auch für eine persönliche Beratung rund um den Blockhausbau und die Massivholzhäuser von LéonWood® zur Verfügung.
Daten
- Variante 1: 74,0 m²
- Variante 2: 74,5 m²
- Preis: ab 104.800 € (Wandausführung BIO-Doppelwand DuoPlus*)
Der Preis beinhaltet den Blockhaus-Bausatz nach Standard-Grundriss, die Lieferung an eine frei erreichbare Baustelle in Deutschland sowie die aktuell geltende MwSt. für Deutschland. Bilder enthalten Sonderausstattungen.






