Blockhaus Geschäfts- und Besucherzentrum LéonWood®
Moderner Blockhausbau: Holz in zeitgemäßem Stil und Ambiente
Superlative gehen hier Hand in Hand. Das neu entstandene Zentralgebäude richtet sich ganz klar nach modernen Gestaltungsrichtlinien. Angelehnt an das LéonWood®-Musterhaus „Mikado“ in Klosterfelde, erstrahlt auch der neue Blockhausbau am Zentralstandort in Maust (Teichland) in kubischer Form. Gemäß den Leitlinien des Bauhausstils, ist der Aufbau geradlinig und übersichtlich. Die Etagen sind als Vollgeschosse angelegt. Das repräsentative Haupthaus besitzt einen quadratischen Grundriss und erstreckt sich über drei Etagen. Hinten angeschlossen wurde ein ebenerdiges Bürohaus mit rechteckigem Plan, das vom Haupthaus aus begehbar ist. Versetzt angelegt, sitzt je Etage ein zeitgemäßes Flachdach oben auf. Die graue Fassadenfarbe mit Metallic-Effekt unterstreicht den modernen Charakter.
Blockhausbau: Imposante Vorderfront
An der Straßenseite befindet sich die Schmuckseite des Gebäudes, die schon alleine durch den großen Dachüberstand imposant wirkt. Ebenfalls aufsehenerregend: die fünf Naturstammstützen aus Fichtenholz, jede von ihnen rund acht Meter lang. Zur Fällung der massiven Stämme fuhr die LéonWood®-Geschäftsleitung eigens in ihr Werk in die hohe Tatra, um besonders gerade gewachsene und repräsentative Stämme auszuwählen. Sie tragen das fast sieben Meter überragende Flachdach. Über die gesamte Hausbreite des Blockhausbaus wurde im Obergeschoss ein Balkon mit Glasfußboden und feinem Edelstahlgeländer angelegt. Generell wird die Hauptfassade durch acht große Fensterelemente gegliedert, je vier pro Etage. Die weißen Rahmen harmonieren mit der Hausfarbe und akzentuieren das äußere Erscheinungsbild. Alle Fensterscheiben sind mit einem speziellen Spiegelsonnenschutzglas versehen. Sie reflektieren das Licht und lassen das Gebäude noch einen Funken mehr strahlen.
Blockhausbau mit LéonWood®: die weitere Nutzung
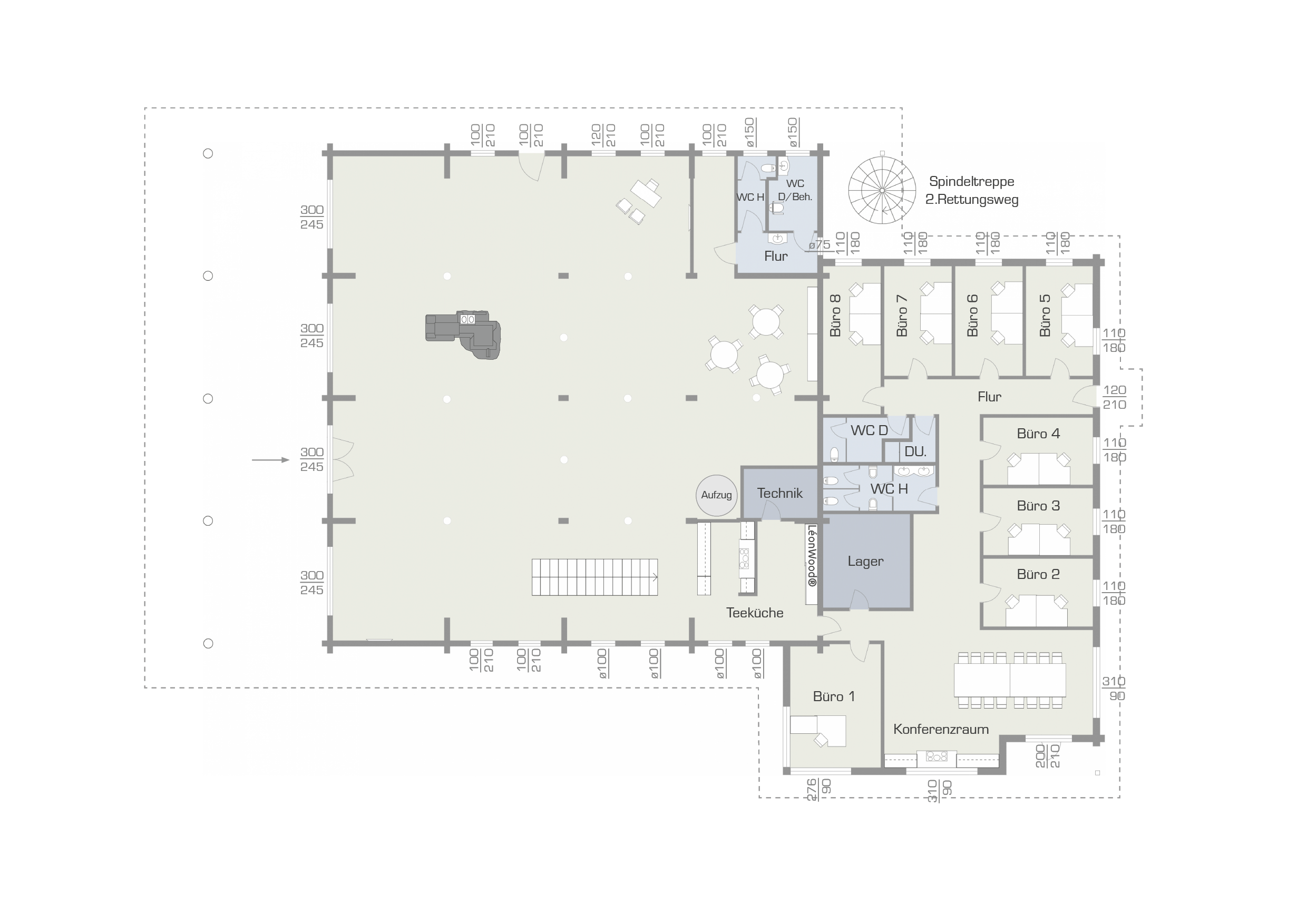
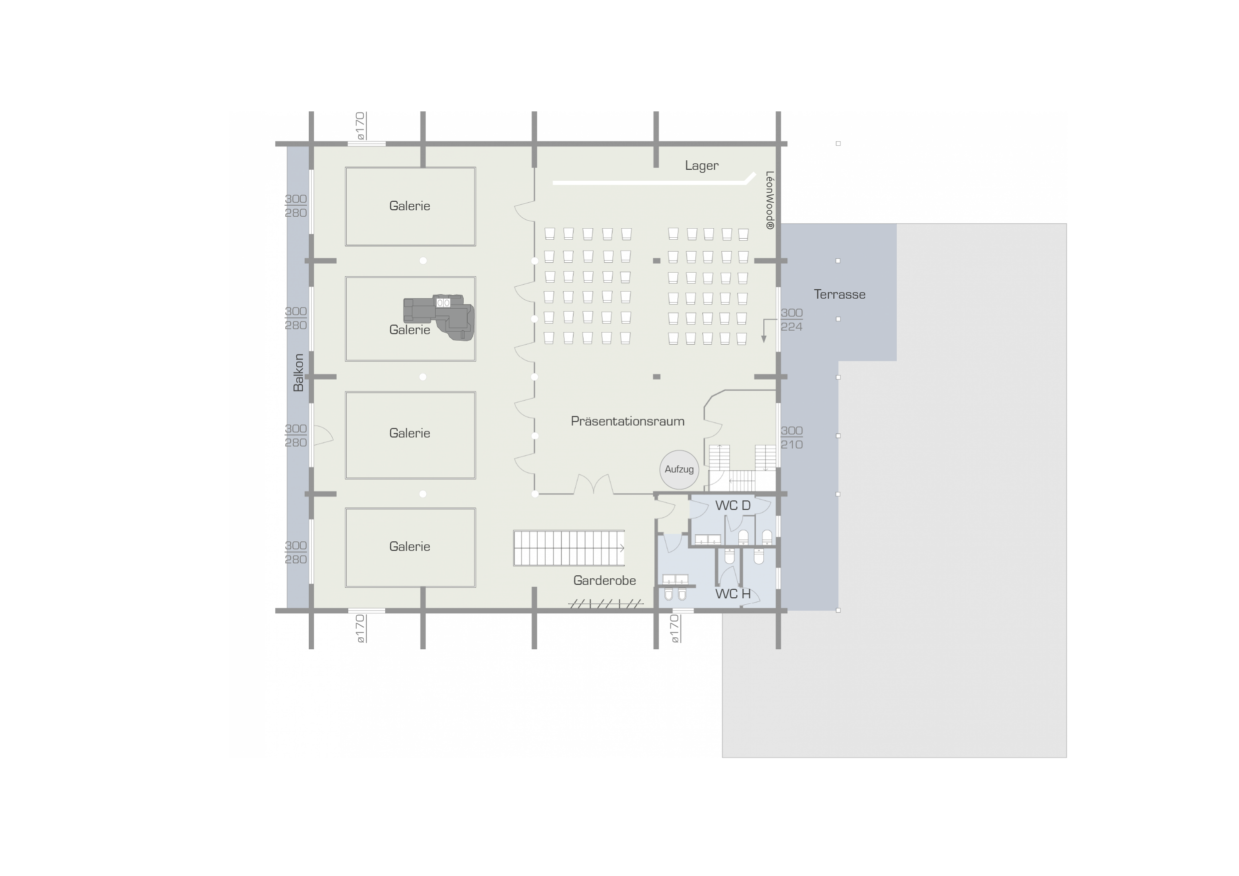
Die Rückansicht des Blockhausbaus ist in Stufen gegliedert. Vorn im Erdgeschoss sitzt der Bürotrakt, der für die Konstruktionsabteilung der Firma LéonWood® vorgesehen ist. An der Seite schlängelt sich eine Wendeltreppe in die erste Etage empor, die in die großzügige Dachterrasse mündet. Von hier aus hat man Zugang zum Konferenzraum, der für firmeninterne Informations- und Weiterbildungsveranstaltungen dient. Die oben aufsitzende Lounge mit eigener Terrasse umfasst zirka 120m² und beinhaltet das Büro sowie einen Besprechungsraum der Geschäftsleitung.
Ein kurzweiliger Aufenthalt im modernen Blockhausbau mit natürlichem Ambiente
Das Erdgeschoss des Haupthauses stellt das Herzstück der neuen Firmenzentrale dar. Hier tauchen Interessenten und zukünftige Bauherren in die LéonWood®-Welt ab. Alles ist hell und freundlich, ein Galeriebereich macht Weite erlebbar. Neben einer multimediaunterstützten Ausstellung über die Firmengeschichte, technische Hintergründe oder auch über prominente LéonWood®-Bauherren, finden Gäste auch Ruheecken, um den Blockhausbau auf sich wirken zu lassen. Ein kurzweiliger Aufenthalt in natürlichem und vor allem modernem Ambiente ist garantiert. Besuche sind nach Voranmeldung und unter Einhaltung der aktuellen Corona-Richtlinien jederzeit möglich.
Gesamtkatalog anfordernDaten
- Maße: Haupthaus: 22,00m x 22,00m; Bürohaus: 22,90m x 12,30m
- Fläche: ca. 1.113m²
- Dach: Flachdach
- Wand: Dickbalkenwand LéonBloc* und BIO-Doppelwand DuoExtraPlus*
- Dämmung: Korkgranulat
- Preis: auf Anfrage
Der Preis beinhaltet den Blockhaus-Bausatz nach Standard-Grundriss, die Lieferung an eine frei erreichbare Baustelle in Deutschland sowie die aktuell geltende MwSt. für Deutschland. Bilder enthalten Sonderausstattungen.






















